NEW

シーサイドパレス明石錦明館 714

1,830万円

兵庫県明石市大蔵天神町22-25

山陽電鉄本線「人丸前」駅徒歩5分

山陽電鉄本線「大蔵谷」駅徒歩10分

山陽本線「明石」駅徒歩15分

価格
1,830万円
間取り
3LDK
向き
西
所在地
兵庫県明石市大蔵天神町22-25
交通

山陽電鉄本線人丸前」駅 徒歩5分

山陽電鉄本線大蔵谷」駅 徒歩10分

山陽本線明石」駅 徒歩15分

専有面積
71.84㎡
築年月
1977年7月(築48年)

物件の特徴

  • バストイレ別

  • 独立洗面台

  • 浴室乾燥機

  • エレベーター

セールスポイント

『シーサイドパレス明石錦明館』7階部分・リノベーション物件です。大蔵海岸公園まで徒歩5分の立地です。中崎小学校・大蔵中学校区で近くにスーパーやコンビニなどもあり、海野近い明るい街並みです。明石市でお探しの際は是非ご検討下さい。

ポイント

こちらの物件は周辺に2つ駅があるので利便性の良い物件です。4人家族にぴったりの広さのある3LDKの物件情報は当社まで。価格が1 830万円の物件です。お気に入りの中古マンションで満足度の高い生活をしましょう。お客様の住まい探しを 経験豊富な当社スタッフがしっかりとサポート致します。ご要望やご不明な点などござましたら メール又はお電話にてご連絡ください。

担当者のコメント

笠松 駿

【中古住宅を購入してリノベーションしよう!】
ライフラインでは不動産・建築に詳しい有資格者のスタッフが
お客様の住宅購入を全力でサポートさせて頂きます。
住宅購入に必要な資金からリフォーム・リノベーションにかかる費用
までまとめてご相談頂けます。
資金計画から物件探し・リノベーションプラン設計・工事施工・アフターメンテナンスまで1社完結のワンストップサービスで自分好みの空間を実現しませんか?
お気軽にご相談下さいませ。

基本情報

管理費
8,630円
修繕積立金
12,220円
修繕積立基金
-
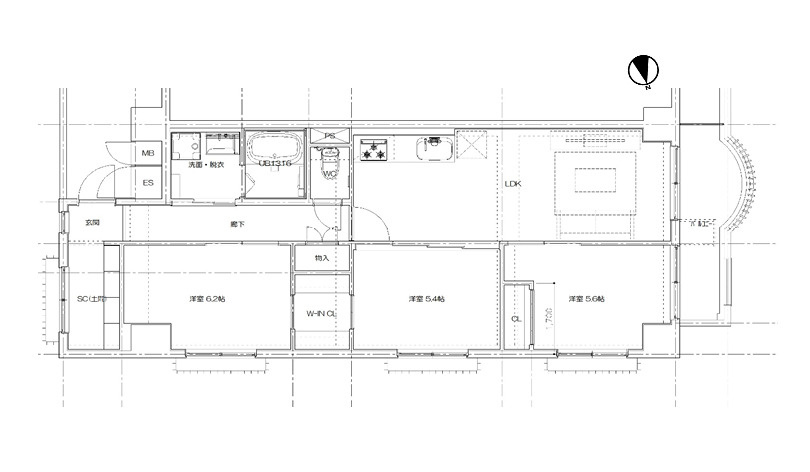
間取り / 詳細
3LDK
LDK 12.5帖/洋室 6.2帖/洋室 5.6帖/洋室 5.4帖
向き
西
専有面積
71.84㎡
バルコニー面積
6.44㎡
その他面積
-
-
-
所在階 / 階建て
7階 / 8階建
建物構造
鉄骨鉄筋コンクリート(一部鉄筋コンクリート)
築年月
1977年7月(築48年)
種別
中古マンション
土地権利
所有権
土地
(敷金 / 保証金)
- / -
国土法届出要否
不要
接道状況
-
用途地域
近隣商業
地勢
-
都市計画
市街化区域
現況
空家
引渡し
即時
取引態様
仲介
棟総戸数
110戸
管理形態
管理会社に全部委託
管理会社 /
管理組合有無
日本管財住宅管理 / 有
取引条件の
有効期限
2026年03月02日

設備条件

設備条件
  • リノベーション済 / フローリング / バルコニー / 都市ガス / 公営水道 / 公共下水 / エレベーター / 駐輪場 / バイク置場あり / 食器洗い乾燥機 / システムキッチン / バス・トイレ別 / 追焚機能浴室 / 浴室乾燥機 / 温水洗浄便座 / 洗面台 / 独立洗面台 / ウォークインクロゼット
設備(その他)
    -

その他

物件番号
99584129
管理コード
-
建築確認番号
-
情報更新日
2026年02月16日
次回更新予定日
2026年03月02日
取扱会社
  • ライフライン不動産
  • 兵庫県神戸市垂水区東舞子町18-22 オーブデメール 201
  • TEL:0120-36-7345
  • 兵庫県知事 (1) 第012453号
    建設業登録:兵庫県(般-6)第115634号
    二級建築士事務所登録:台02A02779号
  • (一社)兵庫県宅地建物取引業協会
    (公社)全国宅地建物取引業保証協会
備考
物件の内覧をご希望の際はお気軽にお問合せ下さい。現地での待ち合わせ、もしくはお車で現地までのご送迎もご対応させて頂きます。 ご来店の際はインターネットに掲載できない物件も多数御座いますので、資金計画からご希望に沿った物件情報を多数ご紹介させて頂きます!

シーサイドパレス明石錦明館の他の部屋

  1. 214

    3LDK (66.00㎡)

    1,890万円(94.69万円/坪)

周辺施設

  • セブンイレブン 明石相生町1丁目店の画像

    コンビニエンスストア

    セブンイレブン 明石相生町1丁目店

    228m(3分)

  • 明石市立中崎小学校の画像

    小学校

    明石市立中崎小学校

    270m(4分)

  • LAMU(ラムー) 大蔵海岸店の画像

    スーパー

    LAMU(ラムー) 大蔵海岸店

    889m(12分)

  • 明石駅の画像

    明石駅

    1368m(18分)

  • 朝霧の画像

    朝霧

    1691m(22分)

  • 明石市立大蔵中学校の画像

    中学校

    明石市立大蔵中学校

    1877m(24分)

  • あさぎり病院の画像

    総合病院

    あさぎり病院

    2268m(29分)

支払いシミュレーション

月々の支払額
9.6
購入希望物件価格
万円
頭金
万円
金利
%
返済額(ボーナス1回分)
万円
返済期間

※ボーナスは自動で年2回分で計算されます。

近隣の物件

  1. ハイレジデンス朝霧

    明石市朝霧東町3丁目

    4LDK (86.40㎡)

    2,080万円

  2. 藤和明石公園ハイタウン弐号棟

    明石市茶園場町

    3LDK (66.00㎡)

    1,990万円

  3. 朝霧パークホームズ

    明石市東野町

    4LDK (95.92㎡)

    3,060万円

  4. アルファステイツ朝霧丘

    明石市中朝霧丘

    3LDK (67.80㎡)

    1,890万円

シーサイドパレス明石錦明館

シーサイドパレス明石錦明館

1,830万円

8,630円

3LDK(71.84㎡)

お気軽にお問い合わせください

無料お問い合わせ

ライフライン不動産

0120-36-7345

9:00~18:00

(休:-)